Wohnung 10 – Penthouse
- 2.182 €
Informationen zur Wohnung
Aktualisiert am April 29, 2026 beim 2:16 p.m.-
Kaltmiete 2.182 €
-
Wohnungsgröße 121,21 m²
-
Stellplatzmiete 150 €
-
Zimmer 3
-
Bäder 2
-
Garagen 1 mit Wallbox und 2 Fahrradstellplätzen
-
Baujahr 2026
-
Wohnung 3. Etage
-
Status Zu vermieten
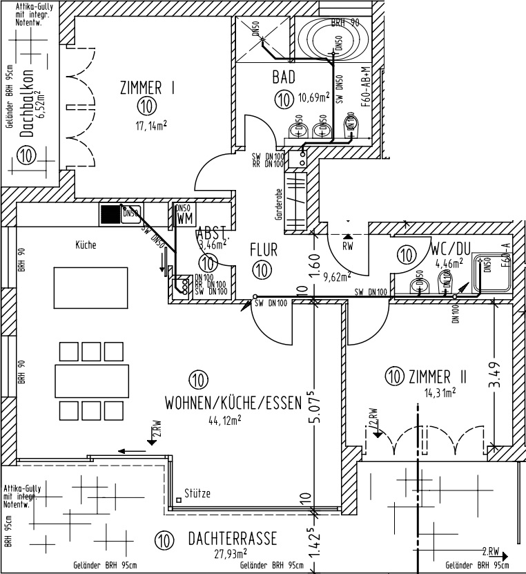
Wohnraumaufteilung
-
Wohnen/Essen/Küche 44,12 m²
-
Zimmer I 17,14 m²
-
Zimmer II 14,31 m²
-
Flur 9,62 m²
-
Bad 10,69 m²
-
Abstellraum 3,64 m²
-
WC/DU 4,46 m²
-
Dachbalkon gesamt/anteilig 6,52/1,56 m²
-
Dachterrasse gesamt/anteilig 27,93/6,98 m²
Beschreibung
Exklusiv, großzügig und mit besonderem Wohngefühl – dieses Penthouse in Solingen-Hästen bietet Ihnen ein Zuhause auf einem ganz neuen Niveau.
Ideal für Paare mit Anspruch, Familien oder alle, die Wert auf Raum, Privatsphäre und ein außergewöhnliches Wohnambiente legen.
Highlights auf einen Blick
- Penthouse-Wohnung mit besonderem Wohncharakter
- Großzügige, lichtdurchflutete Räume
- Balkon / Dachbereich für entspannte Stunden im Freien
- Zwei Badezimmer – ideal für Alltag und Komfort
- Hochwertiges, offenes Wohngefühl
- Vermietung direkt vom Eigentümer – ohne Maklerprovision
Unterlagen zur Immobilie
Grundriss Wohnung 10
Merkmale von A-Z
- Apotheken: 1,1 km und 1,5 km
- Ärzte im Umkreis von 2 km
- Bad: Designerarmaturen
- Bad: eingelassene Wandnische in der Dusche
- Bad: Geruchsabsaugung am WC
- Bad: große geflieste, bodentiefe Dusche mit Duschrinne
- Bad: großer Waschtisch mit Unterschrank
- Bad: Handtuchheizkörper
- Bad: hochwertige Designerarmaturen
- Bad: Raumabluft präsenz- und feuchtegesteuert
- barrierearm
- bodentiefe Schiebetüren
- Eiche Parkett
- Einbruchschutz
- Fenster Isolierverglasung 3-fach
- Fenster mit elektrischen Rollladen
- Fußbodenheizung für Heizen und passives Kühlen
- Gegensprechanlage / Videoanlage
- Gemeinschaftswaschraum
- Glasfaseranschluss vorbereitet
- gute ÖPNV-Anbindung
- Hausmeisterservice
- Haustiere auf Anfrage
- hochwertige Fliesen im Großformat 80x80
- integrierte Deckenspots LED
- Kamin vorbereitet
- Kaution: 2 Monatsmieten
- Klimaanlage Split
- kontrollierte Wohnraumlüftung dezentral mit Wärmerückgewinnung
- Nahversorgung: ab 1,1 km
- Smart-Home-Features
- Tiefgaragenstellplatz mit Wallbox und Fahrradstellfläche
- Türbeschläge und Schalter schwarz
- Whirlpool
Energieklasse
-
Energieklasse: A+
- | Energy class A+A+
- A
- B
- C
- D
- E
- F
- G
- H
Adresse
Öffnen Sie auf Google Maps-
Adresse: Knappenstraße 8
-
Postleitzahl: 42659
